08. Apr 2022
Das Generationenhaus W52 mit GEAK-A-Energieetikette fördert aktiv das gemeinschaftliche und generationenübergreifende Wohnen. Eine ökologische und energieoptimierte Bauweise mit Holz war von Beginn weg gefordert.
Der Ersatzneubau an der Wehntalerstrasse 52 in Zürich-Unterstrass ist bezogen. Mit dem Einsatz der TS3-Technologie, Lehmplatten, Schafwolldämmung und flexiblen Wänden ist der Holzbau aus ökologischer und technischer Sicht hoch interessant.
Geschossdecken mit der TS3-Technologie
Die Gebäudetypologie eignete sich ideal für die TS3-Technologie. Die Brettsperrholzplatten für die Geschossdecken des fünfgeschossigen Holzbaus wurden im Herstellungswerk der Firma Schilliger mit einem Primer vorbehandelt. Auf der Baustelle wurden diese Platten von einem TS3-Anwendungstechniker durch Fugenverguss und ohne Pressdruck stirnseitig miteinander verbunden. So entstehen Grossflächen aus Holz und die Kräfte können an definierten Punkten in die Aussenwände und in das betonierte Treppenhaus eingeleitet werden. Das ermöglicht die Ausbildung von nicht tragenden Innenwänden mit der genannten Flexibilität.
Dank denn zweiachsig tragenden Holzdecken konnten die allseitig auskragenden Balkone und Erker effizient und einfach in reiner Holzbauweise ausgeführt werden. Die Decken spannen rund um den betonierten Treppenhauskern bis auf die Aussenwände, sodass keine tragenden Bauteile im Gebäudeinnern notwendig sind. Die Innenwände, wie auch die Haustechnik, wurde so ausgelegt, dass einzelne Zimmer einfach zwischen den Wohnungen getauscht werden können.

Wärmebrücken einfach gemacht. Wegen der tiefen Wärmeleitfähigkeit von Holz, braucht es keine aufwändigen Kragplattenanschlüsse. Die CLT-Decke läuft von der Wohnung zur Loggia einfach durch.
Fokus Bauphysik
Gut durchdachte Konzepte für die Bauakustik und den Schallschutz sind gefragt. Diese entwickelt die Timbatec Holzbauingenieur Schweiz AG mit Weitsicht und stellen so den Lärmschutz und eine angenehme Raumakustik insbesondere im Bereich der Co-Working Räume sicher. Eine ökologische Bauweise bedingt auch die sorgfältige Auswahl der Baumaterialen: Der Einsatz von Holz, Lehm und Schafwolle ist ein gutes Beispiel für moderne und gleichzeitig rücksichtsvolle Bauweise.
Eine 6 cm dicke Fermacell-Wabenschüttung über den Brettsperrholzdecken, kombiniert mit der mineralischen Trittschalldämmung und dem Unterlagsboden, stellt die Einhaltung der Anforderungen bezüglich Luftschall und Trittschall sicher. Auch für den sommerlichen Wärmeschutz leistet die Geschossdecke einen wichtigen Beitrag.
Decken aus CLT-Platten vergossen mit der TS3-Technologie, mit Schüttung, Trittschalldämmung und Unterlagsboden
Timbatec verzichtet aus ökologischen Betrachtungen konsequent auf den Einsatz von Holz-Beton-Verbunddecken. Mit dem obigen, ressourcenschonenden Bodenaufbau können in Verbindung mit der Qualitätssicherung auf der Baustelle die Schallschutzanforderungen eingehalten werden. In Projekten mit Eigentumsstandard wird der Bodenaufbau den Anforderungen entsprechend angepasst.
Flexible Trennwände
Timbatec entwickelte für die nicht tragenden Innenwände drei Varianten. Die Basic-Variante wird im Inneren der Wohnungen eingesetzt. Dank einer beidseitigen Aufdoppelung kann sie als Wohnungstrennwand eingesetzt werden. Da wo nötig, werden die Wände durch Türschwellen ersetzt. Ein hochflexibles Gebäude mit Wohnungsgrössen, die dem aktuellen Bedarf angepasst werden können, ist das Resultat.
Anschluss Wohnungstrennwand an Decke. Diese wurden so geplant, dass sie ohne grosse Eingriffe zu einer internen Zimmertrennwand umgebaut werden können

Von Innen bleibt das Holz sichtbar und verleiht eine angenehme Atmosphäre.

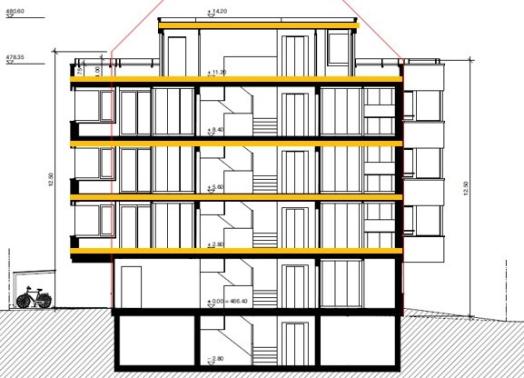
Querschnitt des MFH an der Wehntalerstrasse 52. Gelb markiert sind die Decken mit der TS3-Technologie.